2023 강남(본점)
5년 인증 우수
훈련기관 선정









(스마트웹&콘텐츠개발) 프론트엔드 개발자(자바스크립트,리액트) 실무 프로젝트
프레임워크 & AI 활용 자바 기반 풀스택 멀티플랫폼 웹서비스 개발과정
(산대특)_인공지능 데이터분석 및 예측을 활용한 웹서비스 개발과정_양성_지원
심화_클라우드 기반 MSA 적용 ERP 시스템 웹서비스 구현 프로젝트
프로젝트기반 자바(스프링,백엔드)&파이썬(OCR) 풀스택 웹 개발자 양성과정
프로젝트기반 프론트엔드 (React,Vue) 웹&앱 SW개발자 양성과정
ChatGPT·Claude를 활용한 AI 웹 퍼블리싱 입문: HTML/CSS 실전 기초
ChatGPT를 활용한 콘텐츠 생성 플랫폼 개발: Spring Boot 실무 가이드
챗GPT-랭체인으로 AI 웹서비스 만들기
리액트(React)와 파이어베이스 (Firebase)로 시작하는 웹 개발 과정
Open API를 활용한 인터렉티브 웹 어플리케이션 개발 with Vanilla Javascript
파이썬(python)과 빅데이터 분석 향상과정 (시각화, 판다스)
[UIUX] 풀스택(프론트&백앤드)을 위한 자바스크립트 (바닐라.JS/Javascript)
[UIUX] 풀스택(프론트엔드&백엔드]리액트(React JS) 자바스크립트
C언어
파이썬(Python)) - 응용SW 엔지니어링
자바(Java)
| 1일차 | 선 | 2일차 | 글씨 |
![]() | ![]() | ||
| - 제도용구 사용법과 스케일을 이해할 수 있다.- 선은 도면을 이해하는데 매우 중요한 부분으로 선의 굵기와 용도에 맞는 정확한 선을 사용할 수 있다. | 제도 글씨체를 익힌 후, 도면에 비례하여 기입할 수 있다.(ex. 한글, 영문, 숫자) | ||
| 3일차 | 구조 | 4일차 | 개구부 |
![]() | ![]() | ||
| 벽체의 종류와 표현법을 이해하고, 응용하여 구조를 작도할 수 있다. | 개구부(문, 창문)의 설계 기호 표현법을 이해하고, 작도할 수 있다. | ||
| 5일차 | 각종 표시기호 | 6일차 | 조명 및 소방 설비기구 |
![]() | ![]() | ||
| 설계제도 통칙에 따른 각종 기호표시를 이해하고, 정확한 위치에 표기할 수 있다. | 조명 기구와 종류 및 배치 방법 등에 대해서 알아보고, 도면에 정확하게 계획할 수 있다. | ||
| 7일차 | 가구 | 8, 9일차 | 평면도1, 2 |
![]() | ![]() | ||
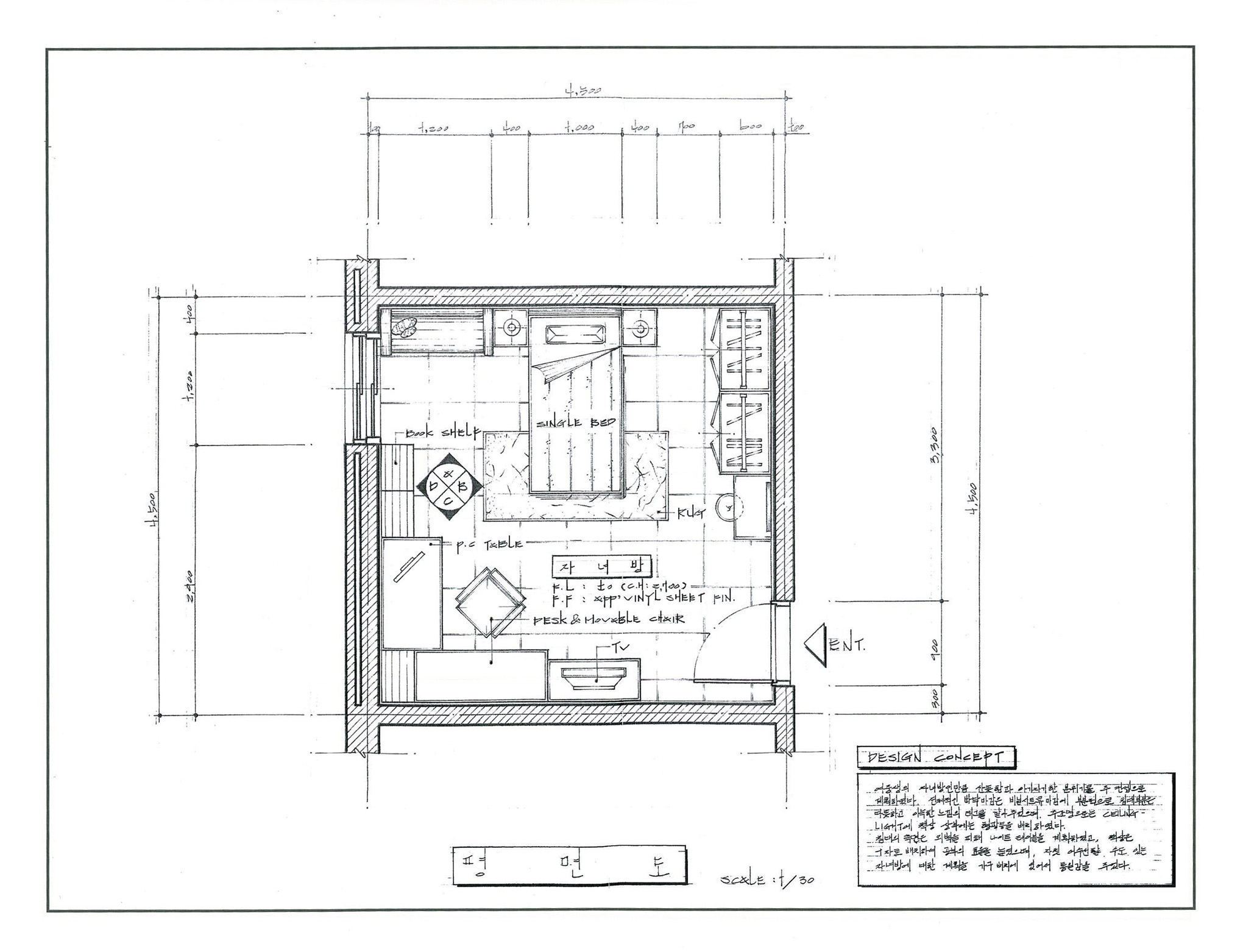
| 인체 치수를 기준으로 가구의 용도, 공간의 성격이나 크기 등을 잘 파악하고, 가구 치수를 산정할 수 있다. | 평면도의 개념을 이해하고, 작도 순서 및 요령을 익힐 수 있다.(ex. 자녀방) | ||
| 10일차 | 천장도 | 11일차 | 입면도 |
![]() | ![]() | ||
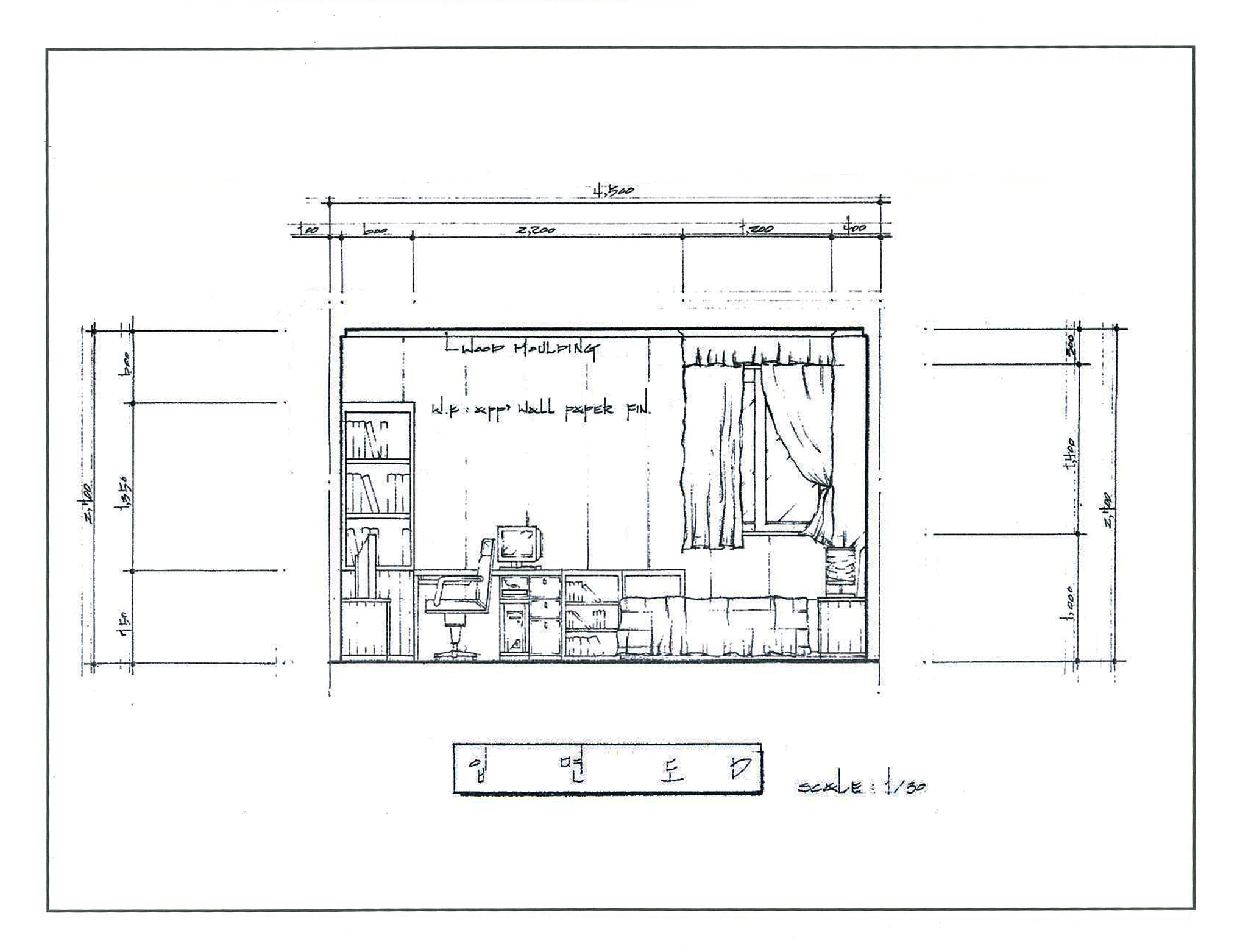
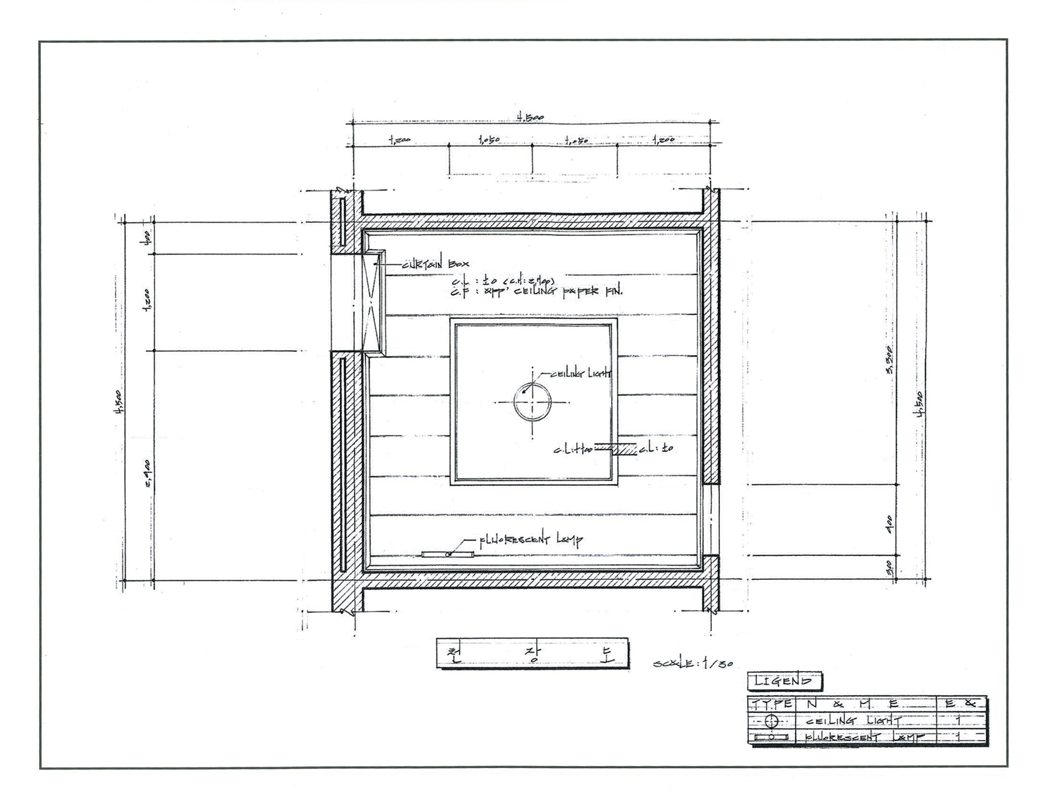
| 천장도의 개념을 이해하고, 작도 순서 및 요령을 익힐 수 있다. | 입면도의 개념을 이해하고, 작도 순서 및 요령을 익힐 수 있다. | ||
| 12, 13일차 | 투시도1, 2 | 14, 15일차 | 설계1, 2 |
![]() | ![]() | ||
| 투시도의 개념을 이해하고, 작도 순서 및 요령을 익힐 수 있다. | 공간을 이해하여 가구 및 집기, 마감재, 디자인 컨셉 등을 계획할 수 있다.(ex. 투룸) | ||




안미란 선생님, 백은지 실장님 감사합니다! :)차상*
※※안미란 선생님, 백은지 실장님 감사드립니다.※※노승*
안미란선생님, 백은지실장님 감사합니다.설동*
안미란 선생님, 백은지 실장님 감사합니다.박세*
안미란 강사님, 백은지 실장님 감사합니다!유현*
안미란 선생님,백은지 실장님 수강 후기입니다.김도*
[BIM] 건축설계(캐드, 레빗, 스케치업, 맥스) 디지털 실무자 양성과정 개강임박